Originally three separate cottages, Trendwell House has been thoughtfully combined into one expansive residence. Full of charm, character, and potential, this remarkable home offers an incredibly versatile layout with endless opportunities for development, multi-generational living, or even subdivision into separate dwellings (subject to planning permission, STPP). As you approach the property, you're greeted by the picturesque charm of a traditional cottage. However, stepping inside reveals a surprising and impressive amount of space that far exceeds first impressions.
On the ground floor, the property features an entrance porch with a W/C, a large sitting room, and hallway access to a study. From the sitting room, there is a door through to the spacious kitchen/dining room, with access to the rear garden, sun room, and utility room. The main staircase rises from the sitting room to the first and second floors, where you will find a total of seven bedrooms-five on the first floor with two bathrooms, and two further bedrooms on the top floor. An additional staircase from the sun room leads to the two bedrooms on the first floor, with appropriate planning permission, this part of the house could be separated to create a self-contained unit, potentially returning part of the property to a 2-bedroom self-contained cottage. Alternatively, it can continue to serve as one large, cohesive family home, as used by the current owner.
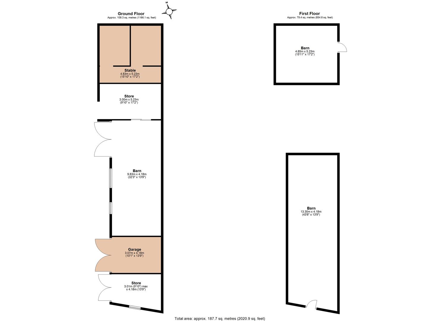
While the interior would benefit from modernisation, it presents a great opportunity for the next owners to renovate and personalise to their taste. Outdoor Space and Potential The grounds are equally impressive. A courtyard leads to a charming lawned garden with mature shrubs, which extends to a generous orchard (Approx. 3.5 Acres) -perfect for recreation, gardening, or subject to planning, potential future development. Two barns offer further flexibility, ideal for storage, stables, a studio, or home office. They also present further conversion opportunities, again subject to the necessary planning consents.
A single driveway from the road provides convenient access and parking adjacent to the barns. Set in the heart of the village, this is a rare opportunity to acquire a property with substantial living space, character, and excellent development potential. Viewing is essential to fully appreciate the scope and charm of this unique home.
Aveton Gifford lies on the western bank of the River Avon, deep in the South Hams in an Area of Outstanding Natural Beauty. The village is probably best known for its 15th Century bridge which was built to replace the ancient ford. There is a public house with a restaurant, church, nursery/primary school, village shop and it is on the bus route. The village also has a tennis club, a children's playground and a large green. The Avon River and Estuary which is renowned for its abundance of wildfowl and it is navigable downstream to Bantham and out to sea, tide permitting is within walking distance. There are also numerous scenic walks that can be enjoyed directly from the property, including an alternative route to Bantham that remains accessible irrespective of the tide.
Tenure: Freehold
Council Tax Band: D
Local Authority: South Hams District Council
Services: Mains Electricity, Water and Drainage. Oil Fired Central Heating.
EPC: Current D (57) Potential C (75)
Viewings: Very strictly by appointment only
Directions: From our office, continue up to the top of Fore Street and turn left onto Plymouth Road. Follow A379 until you reach the roundabout in Aveton Gifford. Take the 3rd exit and continue up Fore Street. The property is located on Bakers Hill which is a right turn off of Fore Street.
What Three Words: ///billiard.looked.hello
IMPORTANT NOTICE: We would like to inform prospective purchasers that these sales particulars have been prepared as a general guide only. They are prepared and issued in good faith and are intended to give a fair description of the property, but do not constitute part of an offer or contract. Any description or information given should not be relied on as a statement or representation of fact that the property or its services are in good condition. Neither Charles Head, nor any of its employees, has any authority to make or give any representation or warranty whatsoever in relation to the property. Floorplans are for guidance purposes only and may not be to scale. The photographs show only certain parts and aspects of the property at the time they were taken. Any reference to alterations to, or use of, any part of the property is not a statement that any regulations or other consent has been obtained. . If there are any important matters likely to affect your decision to buy, please contact us before viewing the property. ALL STATEMENTS CONTAINED IN THESE PARTICULARS AS TO THIS PROPERTY ARE MADE WITHOUT RESPONSIBILITY ON THE PART OF CHARLES HEAD.
An exceptional opportunity to acquire a spacious property with outbuildings, generous land, and exciting potential, all set in a prime central village location.
KINGSBRIDGE OFFICE
113 Fore Street
Kingsbridge, Devon
TQ7 1BG
01548 852352


























