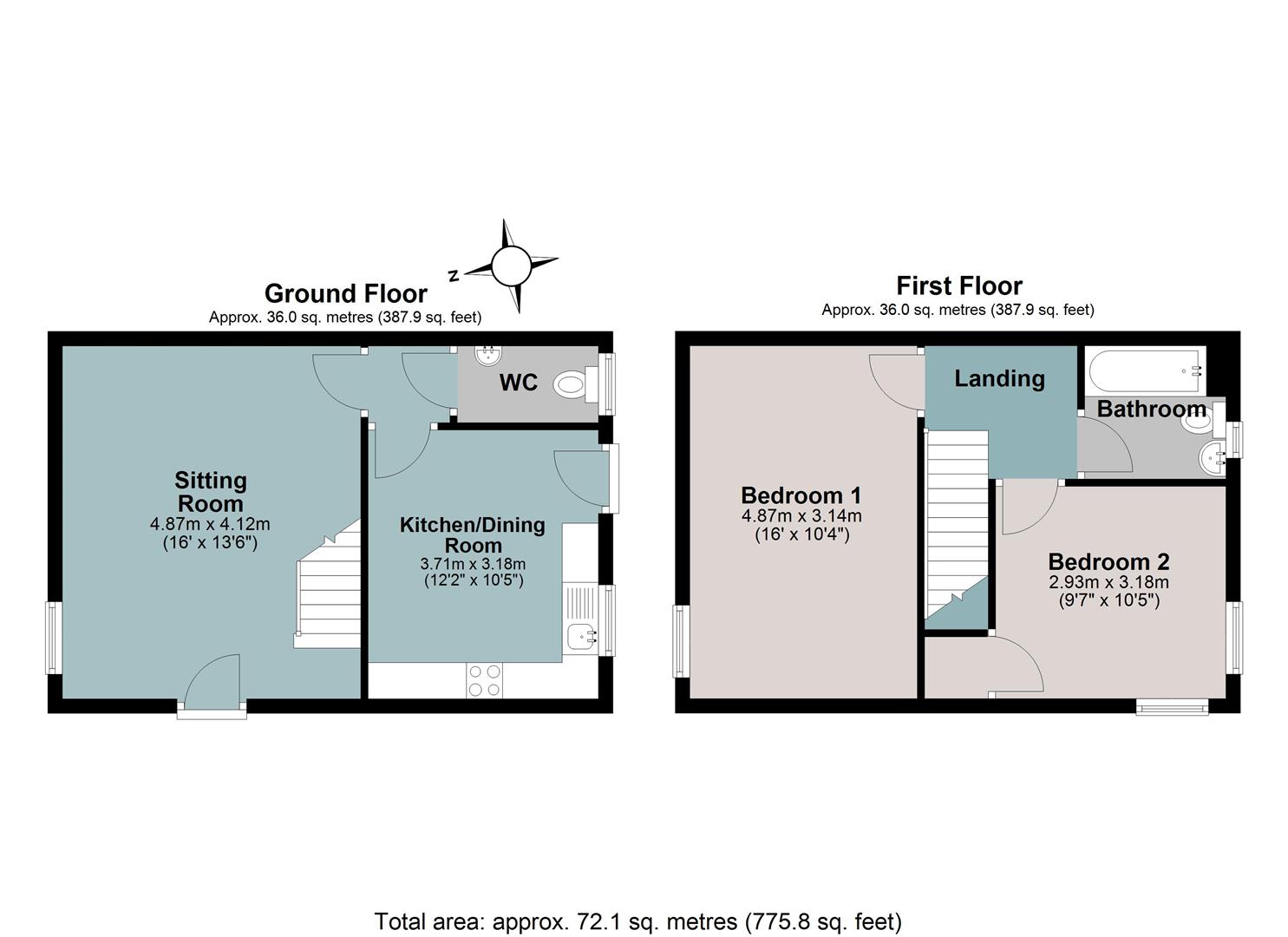
On the ground floor, the property features a welcoming living room complete with a LPG gas fireplace, creating a cosy focal point.
A convenient downstairs WC adds practicality, while the kitchen, positioned at the rear, provides direct access to the garden-perfect for easy indoor-outdoor living. Upstairs, the main bedroom offers generous proportions, while the second double bedroom benefits from built-in storage that also houses the hot water tank. A family bathroom with a shower over the bath serves both bedrooms, and there's access to the loft for additional storage. The rear garden is designed for low maintenance and includes a charming patio courtyard bordered by mature shrubs. A few steps lead up to a detached, insulated home office with electricity-ideal for remote working, hobbies, or creative pursuits. There's also a space suitable for parking a small car within the garden boundary, along with potential to park just outside the property.
Overall, 17 Lister Way presents an attractive opportunity for those seeking a well-balanced home with additional work-from-home potential, all within a convenient and manageable setting.
Tenure: Freehold
Council Tax Band: B
Local Authority: South Hams District Council
Services: Mains Electricity, Water And Drainage. Electric Storage Heaters.
EPC: Current D (67) Potential B (87)
Viewings: Very strictly by appointment only
Location: The popular rural village of East Allington offers a thriving local community with an Inn, church, well regarded primary school, pre-school, and a community village shop. Surrounded by unspoiled rolling countryside the village is within easy reach of the beautiful coastline, beaches, and estuaries of the South Hams. The towns of Kingsbridge, Totnes, and Salcombe, with their more extensive commercial and leisure facilities, are all within easy reach. Kingsbridge is a sought-after market town nestled at the estuary head in the beautiful South Hams, a designated Area of Outstanding Natural Beauty. You'll find an array of independent shops, renowned dining experiences and cosy local pubs. The town amenities include two supermarkets, petrol station, cinema, leisure centre, medical facilities, community hospital and excellent schools. Kingsbridge Community College is one of the top-rated secondary schools in the UK. A bus runs from East Allington to Kingsbridge Community College.
Directions: From our office, turn right onto Duncombe Street and continue along the road, bearing left leaving Kingsbridge. At the roundabout, take the second exit onto the A381, heading towards Totnes. After 1 mile turn right where East Allington is sign posted. Follow this road for around 1 mile into the village. As you enter, bear left, then take the next right into Lister Way. The property will be on the left-hand side.
What Three Words: ///mirroring.maximum.flown
IMPORTANT NOTICE: We would like to inform prospective purchasers that these sales particulars have been prepared as a general guide only. They are prepared and issued in good faith and are intended to give a fair description of the property, but do not constitute part of an offer or contract. Any description or information given should not be relied on as a statement or representation of fact that the property or its services are in good condition. Neither Charles Head, nor any of its employees, has any authority to make or give any representation or warranty whatsoever in relation to the property. Floorplans are for guidance purposes only and may not be to scale. The photographs show only certain parts and aspects of the property at the time they were taken. Any reference to alterations to, or use of, any part of the property is not a statement that any regulations or other consent has been obtained. . If there are any important matters likely to affect your decision to buy, please contact us before viewing the property. ALL STATEMENTS CONTAINED IN THESE PARTICULARS AS TO THIS PROPERTY ARE MADE WITHOUT RESPONSIBILITY ON THE PART OF CHARLES HEAD.
A charming two-bedroom home located in a village that features a pub, a primary school and a community run shop. Studio with electric
KINGSBRIDGE OFFICE
113 Fore Street
Kingsbridge, Devon
TQ7 1BG
01548 852352










