The Property- Step into an exciting commercial opportunity accessed via Fore Street, where a unique lower-level space awaits. Descend a staircase to a spacious, open room that offers a versatile layout suitable for a variety of business ventures. The property includes a small adjoining room with convenient access to a private restroom, enhancing functionality and privacy. The premises also benefits from a shared garden. With its prominent street level entrance and strategic location, this property presents an enticing prospect for businesses seeking a distinctive and accessible setting in the heart of town.
Location- Kingsbridge is a charming market town nestled in the scenic South Hams district of Devon, England. Visitors and residents alike appreciate Kingsbridge's vibrant community, which offers a delightful array of independent shops, cafes, and restaurants. The premises are located in the centre of the market town of Kingsbridge. Close by there is a mixture of national chains including W.H. Smith, Morrisons Daily and a number of independent retailers. There is plenty of parking on the high street or in nearby public car parks and the shop is situated on a main bus route. Kingsbridge has a resident population of some 6,000 with a hinterland of villages and rural communities regularly using the town which increases this figure to almost 20,000. This is further increased by holiday makers and visitors to the South Hams Area of Outstanding Natural Beauty with its coasts and beaches. Plymouth is 18 miles, Exeter 38 miles, Totnes 11 miles, Salcombe 7 miles.
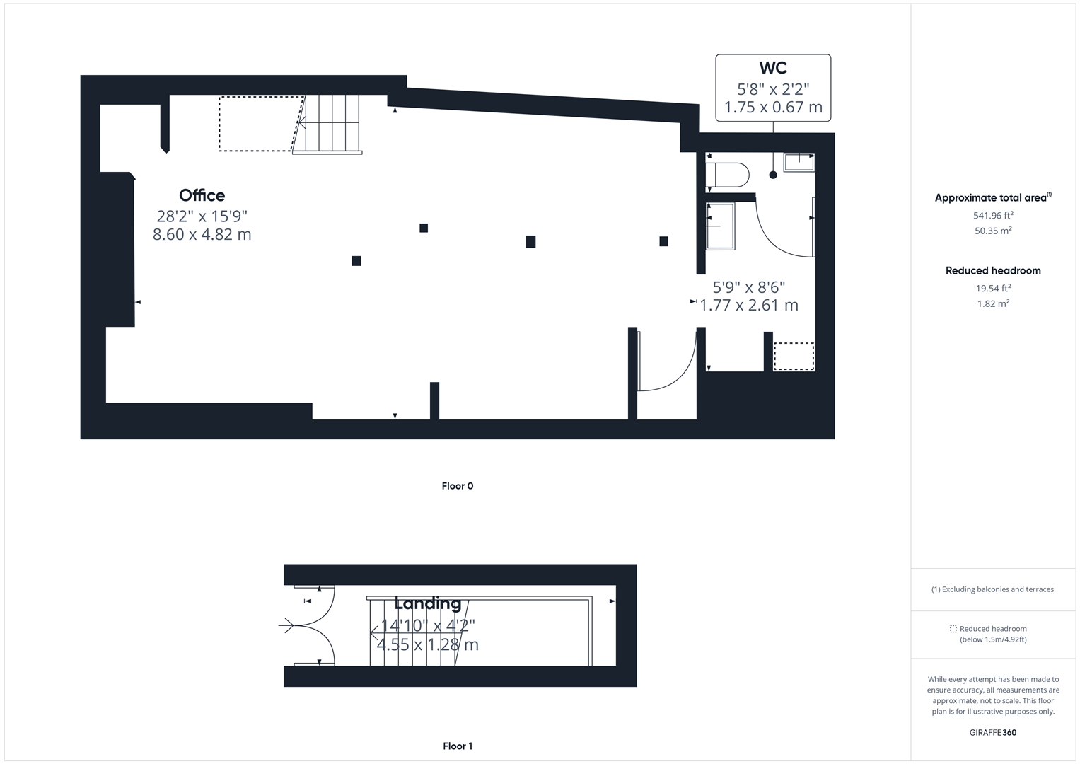
Accommodation provides
Approx. 430 sq ft
Retail Area 4.98m x 9.15m
Store approx. 42.34 sq ft
W/C 1.75m x 0.67m
Tenure- Leasehold of 999 years starting from 1998.
Services- Mains electricity, water and drainage.
EPC- 54
Maintenance fees - A ratio of 25% for the building and 12.5% for the shared garden.
Ground rent- £5 per annum.
Planning and Use Class- The property is Grade II Listed. Planning within E Class formerly known as A1.
Business Rates- From the Valuation Office Agency Website. We understand from the current rateable value is £5,100 per annum. Although this is for its current use, it will need to be reassessed if there is a change of use. The premises is entitled to Small Business Rate Relief having a rateable value of £12,000 or less.
Legal Costs- All parties are responsible for paying their own legal costs.
Direction- From our office in Kingsbridge, turn left walking down Fore Street. As you approach The Bake House the entrance will be to the left of it.
IMPORTANT NOTICE: We would like to inform prospective purchasers that these sales particulars have been prepared as a general guide only. They are prepared and issued in good faith and are intended to give a fair description of the property, but do not constitute part of an offer or contract. Any description or information given should not be relied on as a statement or representation of fact that the property or its services are in good condition. Neither Charles Head, nor any of its employees, has any authority to make or give any representation or warranty whatsoever in relation to the property. Floorplans are for guidance purposes only and may not be to scale. The photographs show only certain parts and aspects of the property at the time they were taken. Any reference to alterations to, or use of, any part of the property is not a statement that any regulations or other consent has been obtained. . If there are any important matters likely to affect your decision to buy, please contact us before viewing the property. ALL STATEMENTS CONTAINED IN THESE PARTICULARS AS TO THIS PROPERTY ARE MADE WITHOUT RESPONSIBILITY ON THE PART OF CHARLES HEAD.







