Wild Strawberry Barn is an architecturally designed barn conversion, thoughtfully reimagined by the current owners to unlock the original building’s true potential. Completed in 2018, the result is a grand yet welcoming home of around 3,500 sq ft (main house), blending contemporary comfort with characterful nods. Flooded with natural light, the spaces feel open and flowing while still retaining a cosy, warm atmosphere. Set within a beautiful countryside backdrop, the property’s sense of arrival is equally special: approached through the private Woolston Estate, the drive creates a wonderfully grand and almost dreamlike entrance. Driving through your private electric gates brings you to the turning circle with ample parking.
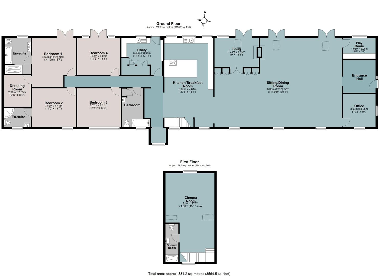
Entering through a spacious hallway with built-in storage, you’re led straight to the heart of the home—an impressive open-plan living area. Cleverly zoned for dining, relaxing and entertaining, it remains flexible to suit your layout. French doors open to the patio for an easy indoor–outdoor feel. Highlights include an exposed brick wall with log burner, two offices, and a standout hidden “secret snug” concealed behind a bookcase—a cosy retreat with garden access and a double-sided fireplace shared with the main living space. Off the living area is a beautifully appointed kitchen with a large breakfast island housing an induction hob with integrated extractor, wine cooler, generous storage and ample prep space. The kitchen also offers two integrated ovens, a coffee machine, a microwave/oven and a large fridge/freezer.
A hallway leads to the bedroom wing, which can be discreetly closed off with a glass sliding pocket door. Here you’ll find a utility room and plant room with patio access, a family bathroom, two spacious bedrooms (one with patio doors), a further bedroom with en-suite, and an exceptional principal suite. The main bedroom includes French doors, built-in wardrobes and a spa-style en-suite with Jacuzzi bath, twin shower with jets, and twin basins.
Most accommodation is on one level, but stairs off the kitchen lead to a cinema room with its own en-suite, also suitable as a fifth bedroom. Smart-home features enhance the main living areas.
Outside, the grounds are equally impressive. Set in around 4 acres, they include sweeping lawns, paddocks, woodland and multiple patio areas. A paddock to the right of the entrance features a versatile outbuilding with stable section, kitchenette and WC—formerly an office but ideal for stabling, storage or hobbies. There is also a two-vehicle car port with a third bay offering mezzanine storage, plus power and water. A substantial 45ft x 30ft outbuilding with vehicle access, power and water adds further potential, alongside chicken and sheep coops and an original “goat” shed with its own utilities.
Positioned off the B3196 and just a short drive away from the A38, local beaches, and the charming market towns of Kingsbridge, this property offers an ideal blend of semi-rural tranquility and accessibility to urban amenities, making it a perfect choice for those seeking a balanced lifestyle.
Location- The sought after market town of Kingsbridge is located at the head of the estuary in the beautiful South Hams, an ‘Area of Outstanding Natural Beauty’, and provides a fantastic range of local and independent shops, restaurants, pubs, two supermarkets, a cinema, a leisure centre with swimming pool, medical centre, community hospital, schooling and churches all whilst retaining a small town feel with a strong community. Kingsbridge Academy is one of the highest rated in the UK. There are regular sporting activities as well as markets and social events. With boat moorings along the estuary and quay, regular public transport and road links to nearby Dartmouth, Salcombe and surrounding villages. The area has an abundance of beaches, coves and country and coastal walks. The market town of Totnes is 13 miles away and offers the main line rail link providing a direct link to London Paddington in approx. 3 hours
Tenure: Freehold
Council Tax Band: G
Local Authority: South Hams District Council
Services: Mains electric, water, private drainage with treatment plant, ground source heat pump, solar panels - has private bore hole but not connected
Estate Service Charge: Approx. £250 annually
EPC: Current C (74) Potential B (87)
Viewings: Very strictly by appointment only
Directions: From Kingsbridge, follow B3196 through Loddiswell village. When you reach the Chili Farm take the opposite 2nd left hand turning. There will be pillars either side of the driveway, it will be marked Woolston House. After passing the pond, take the right hand fork and take the right turn through the double gates.
What Three Words: ///biggest.reporting.rummage
IMPORTANT NOTICE: We would like to inform prospective purchasers that these sales particulars have been prepared as a general guide only. They are prepared and issued in good faith and are intended to give a fair description of the property, but do not constitute part of an offer or contract. Any description or information given should not be relied on as a statement or representation of fact that the property or its services are in good condition. Neither Charles Head, nor any of its employees, has any authority to make or give any representation or warranty whatsoever in relation to the property. Floorplans are for guidance purposes only and may not be to scale. The photographs show only certain parts and aspects of the property at the time they were taken. Any reference to alterations to, or use of, any part of the property is not a statement that any regulations or other consent has been obtained. . If there are any important matters likely to affect your decision to buy, please contact us before viewing the property. ALL STATEMENTS CONTAINED IN THESE PARTICULARS AS TO THIS PROPERTY ARE MADE WITHOUT RESPONSIBILITY ON THE PART OF CHARLES HEAD.
























