No. 9 is a detached dormer bungalow situated in a highly sought-after area of Kingsbridge.
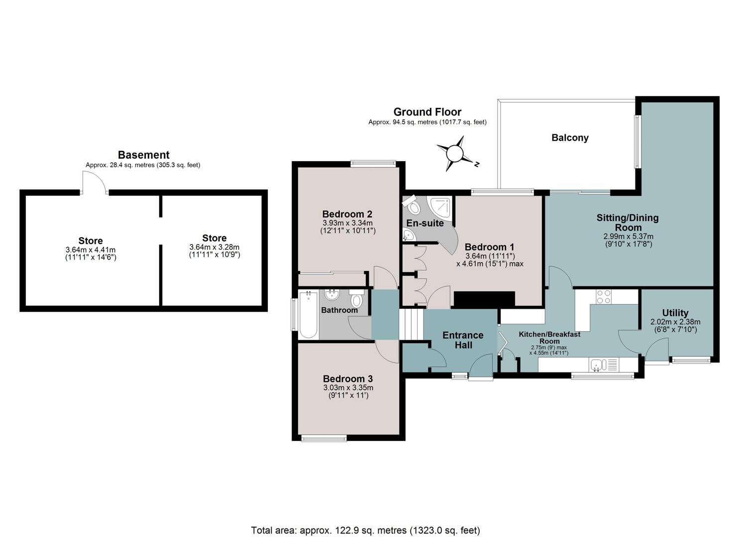
The property opens into an entrance hallway with useful built-in storage. The well-presented kitchen features a breakfast bar and provides access to a separate utility room.
The living accommodation is light and generously proportioned, arranged in an L-shape to create defined sitting and dining areas. Sliding doors open onto a west-facing balcony, offering far-reaching countryside views and an ideal space for outdoor seating, particularly in the evening sun. On the main level, bedroom one benefits from built-in wardrobes, an en-suite shower room, and countryside views. A short flight of steps leads to two further spacious bedrooms and a family bathroom fitted with a bath and shower over.
Externally, the property offers a large driveway with plenty of parking with a car port. To the rear, a private garden is accessed via steps from the living room and includes a lawn, patio area, and well-established shrubs and flowers. There is access to a basement level, providing a workshop-style store and additional storage space with electricity. Side access to the property is also available.
Overall, No. 9 is well presented throughout and offers flexible accommodation suited to those looking to upsize, downsize, or relocate.
Tenure: Freehold
Council Tax Band: D
Local Authority: South Hams District Council
Services: Mains electricity, water and drainage. Gas central heating
EPC: Current D (63) Potential C (77)
Viewings: Very strictly by appointment only
Location: Kingsbridge is a sought-after market town nestled at the estuary head in the beautiful South Hams, a designated Area of Outstanding Natural Beauty. You'll find an array of independent shops, renowned dining experiences and cosy local pubs. The town amenities include two supermarkets, petrol station, cinema, leisure centre, medical facilities, community hospital and excellent schools.
Kingsbridge Community College is one of the top-rated secondary schools in the UK. The estuary offers boat moorings and water sport activities, while public transport and well-connected road links lead to nearby Dartmouth, Salcombe and Totnes. With an abundance of pristine beaches, hidden coves and breathtaking walks on the doorstep.
Directions: Entering Highfield Drive continue up the hill and take the third left hand turn into Barton Close, No,9 will be on the left.
What Three Words: ///spans.rinses.volcano
IMPORTANT NOTICE: We would like to inform prospective purchasers that these sales particulars have been prepared as a general guide only. They are prepared and issued in good faith and are intended to give a fair description of the property, but do not constitute part of an offer or contract. Any description or information given should not be relied on as a statement or representation of fact that the property or its services are in good condition. Neither Charles Head, nor any of its employees, has any authority to make or give any representation or warranty whatsoever in relation to the property. Floorplans are for guidance purposes only and may not be to scale. The photographs show only certain parts and aspects of the property at the time they were taken. Any reference to alterations to, or use of, any part of the property is not a statement that any regulations or other consent has been obtained. . If there are any important matters likely to affect your decision to buy, please contact us before viewing the property. ALL STATEMENTS CONTAINED IN THESE PARTICULARS AS TO THIS PROPERTY ARE MADE WITHOUT RESPONSIBILITY ON THE PART OF CHARLES HEAD.















