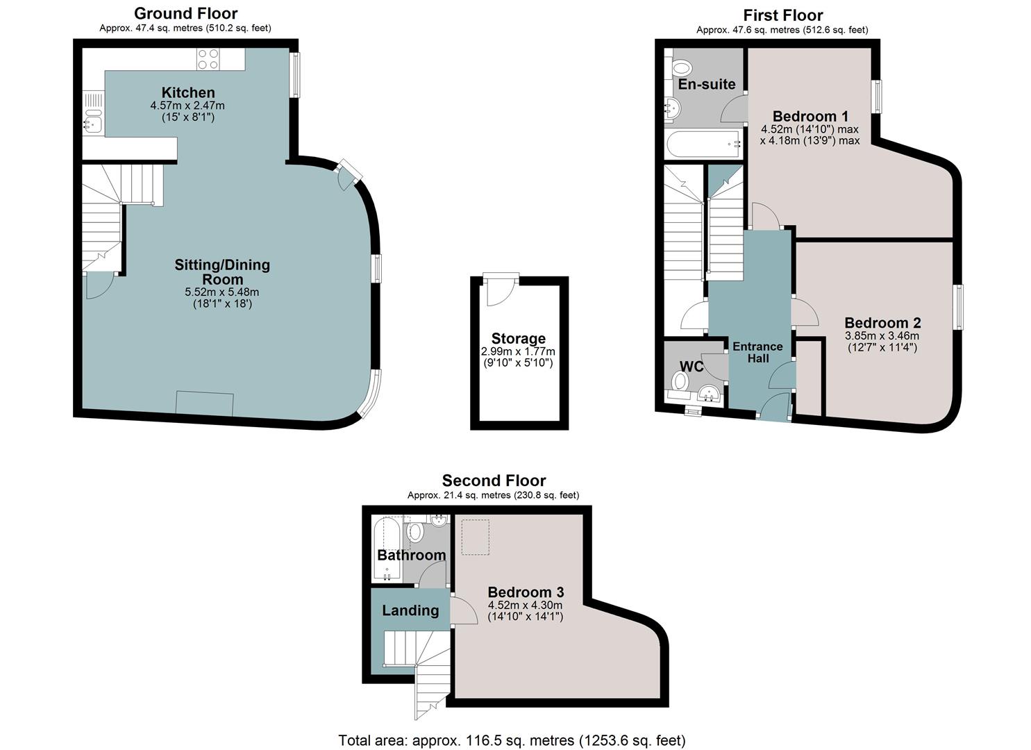
Welcome to Wheelwrights, located in the outskirts of Slapton. As you step into the property, you are welcomed by a spacious entrance hallway. Here, you will find a W/C, alongside Bedroom 1 which boasts an ensuite bathroom complete with a shower over the bath. Bedroom 2, also located on this floor, features a beautiful exposed beam and offers serene countryside views from its windows.
Ascending to the second floor, you will discover Bedroom 3 with exposed beams and a Velux window, adding to its character. The family bathroom is also situated on this floor and includes a shower over the bath with Velux window.
The ground floor is the heart of the home, presenting a spacious and inviting open-plan kitchen, living, and dining area. A unique feature of this space is the characterful steel wheel situated in the center of the living room. The well-equipped kitchen includes fitted appliances such as an oven, electric hob, fridge/freezer, and dishwasher. A couple of steps lead you to the comfortable living and dining areas. A door opens up to the tranquil garden. This sun-drenched haven is filled with beautiful flowers and offers lovely countryside views, making it an ideal spot for relaxation.
The property also features a front courtyard garden where you can enjoy further countryside views. The property has two parking spaces. The property also features a front courtyard garden where you can enjoy further countryside views. The property has two parking spaces.
The village of Stokenham is just a short drive from the property. In Stokenham, you will find a primary school, a local pub, and church. Additionally, the nearby village of Slapton provides further local amenities and attractions.
Location: Slapton has a thriving community, and is home to two Public Houses, an independent community shop, the village Hall and the Church. Less than a mile away the beautiful pebble beach of Slapton Sands can be found along with the freshwater nature reserve of Slapton Ley. The spectacular South West Coastal path is joined here on the stretch between Dartmouth and Start Point. For a comprehensive array of amenities, including shops, healthcare facilities, educational institutions, and recreational opportunities, both Kingsbridge and Dartmouth lie within an eight-mile radius, easily accessible via a main bus route. Dartmouth itself, situated on the picturesque River Dart estuary, captivates with its panoramic vistas of the sea. The town boasts a vibrant array of local boutiques, eateries, and cultural events, including the renowned Dartmouth Regatta and delightful food festivals.
Directions: From the centre of Kingsbridge take the exit towards Dartmouth (A379) and follow this road until you reach Stokenham. At the roundabout take the first exit and continue straight. Take the next junction on your right and continue for approx. 1.5 miles. Take a sharp left to follow the sign post for Start. Follow this road for 0.5 miles and turn right, this will take you to Lower Coltscombe. Drive to the top of the road and the property will be on your left on the end.
What three words:///splints.fried.diverts
Tenure: Freehold
Council Tax Band: C
Local Authority: South Hams District Council
Services: Mains Electricity, Private Drainage and Private Water.
Service Fee: Approx. £1580 per annum
EPC: Current D (63) Potential C (79)
Viewings: Very strictly by appointment only
IMPORTANT NOTICE: We would like to inform prospective purchasers that these sales particulars have been prepared as a general guide only. They are prepared and issued in good faith and are intended to give a fair description of the property, but do not constitute part of an offer or contract. Any description or information given should not be relied on as a statement or representation of fact that the property or its services are in good condition. Neither Charles Head, nor any of its employees, has any authority to make or give any representation or warranty whatsoever in relation to the property. Floorplans are for guidance purposes only and may not be to scale. The photographs show only certain parts and aspects of the property at the time they were taken. Any reference to alterations to, or use of, any part of the property is not a statement that any regulations or other consent has been obtained. . If there are any important matters likely to affect your decision to buy, please contact us before viewing the property. ALL STATEMENTS CONTAINED IN THESE PARTICULARS AS TO THIS PROPERTY ARE MADE WITHOUT RESPONSIBILITY ON THE PART OF CHARLES HEAD.
If you are looking for a property full of character in a peaceful location, featuring three bedrooms and just a short drive from Slapton Beach and local amenities, this is the perfect choice for you.
KINGSBRIDGE OFFICE
113 Fore Street
Kingsbridge, Devon
TQ7 1BG
01548 852352














